| 価格 | 1,980万円 ![]() |
||||
|---|---|---|---|---|---|
| 所在地 | 千葉県千葉市中央区東千葉2丁目
この地域周辺の物件を見る |
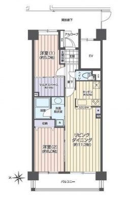
専有面積 | 60.46u | バルコニー面積 | 8.7m² |
| 交通 | JR総武本線 東千葉/徒歩15分
JR総武線 千葉/東寺山町 バス7分 停歩3分 |
管理費等 | 10,300円 | 修繕積立金 | 13,906円 | 築年月 | 1996年3月築 | 間取り | 2LDK (LDK14.3/洋室6/洋室5) |
| 所在階 | 2階/地上6階建 | ||||
電話をかける(携帯・PHS可)
043-309-7350
「ホームページを見て」とお伝え下さい。
お問い合わせ番号をお伝えください
RHS-B00119-064287
| 特徴 |
|
|---|---|
| セールスコメント | 現地案内会開催中‥365日ご案内いつでも大歓迎!! 東千葉駅から徒歩15分/新規リフォーム/2025年3月大規模修繕工事実施済み ■新耐震基準マンション ■公園前の落ち着いた住環境 ■千葉駅からバス利用可能、東寺山町バス停から徒歩3分 ■LDK14.3帖、家族と話しやすいカウンターキッチン ■給湯器・水回り交換済みのきれいな室内 ■食洗機付きでお片付けもスムーズです お客様の笑顔のために。 千葉県の不動産のことなら株式会社アフィオにお任せください。 お客様の一生の宝物になるお家探しの、心強いパートナーになれるよう全力でサポート致します。 ご見学やご相談には迅速にご対応致します。 お気軽にお問合せ下さいませ。 |
| 採光面 | 南 | 取引態様 | 仲介 |
|---|---|---|---|
| 現況 | 空家 | 引渡し | 即時 |
| 総戸数 | 50戸 | 構造 | RC造 |
| テラス面積 | - | 専用庭面積 | - |
| 駐車場 | - | 駐輪場 | - |
| 建物権利 | - | 土地権利 | 所有権 |
| 用途地域 | 第一種中高層住居専用地域 - - | 管理態様 | 管理形態:委託(通勤) 管理組合:- 管理会社:- |
| 小学校区 | 千葉市立千草台東小学校 (千葉県千葉市稲毛区) この学区の他の物件を見る |
中学校区 | 都賀中学校 (千葉県千葉市稲毛区) この学区の他の物件を見る |
電話をかける(携帯・PHS可)
043-309-7350
「ホームページを見て」とお伝え下さい。
お問い合わせ番号をお伝えください
RHS-B00119-064287
| 年利率 | % |
||
|---|---|---|---|
| ボーナス払い | 返済年数 | ||
| 頭金 | 直接入力する | 万円 | |

毎月のご返済額 |
ボーナス(×年2回) |
物件価格1,980万円 |
電話でお問い合わせ
株式会社アフィオ千葉店
|
電話をかける 043-309-7350 ※「ホームページを見て」とお伝えください。 |
お問い合わせ番号をお伝えください RHS-B00119-064287 |
|---|
TEL.043-309-7350
〒264-0036
千葉市若葉区殿台町392-1
9:00~18:30
定休日:水曜日
メインメニュー
物件特集2
※ピタットハウスの加盟店は独立自営であり、各店舗の責任のもと運営をしております。
現地案内会開催中‥365日ご案内いつでも大歓迎!!
東千葉駅から徒歩15分/新規リフォーム/2025年3月大規模修繕工事実施済み