| 価格 | 3,399万円 ![]() |
||||
|---|---|---|---|---|---|
| 所在地 | 千葉県佐倉市臼井
この地域周辺の物件を見る |
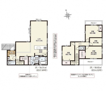
土地面積 | 126.05m² (38.13坪) | 建物面積 | 104.53u |
| 築年月 | 新築 2025年築 | 間取り | 4LDK (LDK23.2/洋室7.5/洋室5.9/洋室5.7/洋室3) | ||
| 交通 |
京成本線 京成臼井/徒歩12分
山万ユーカリが丘線 女子大/徒歩31分 |
||||
電話をかける(携帯・PHS可)
043-309-7350
「ホームページを見て」とお伝え下さい。
お問い合わせ番号をお伝えください
RHS-B00119-064749
| 特徴 |
|
|---|---|
| セールスコメント | 現地案内会開催中‥365日ご案内いつでも大歓迎!! 京成本線「京成臼井」駅徒歩12分 カースペース並列2台分あり ■生活・教育施設徒歩圏内の暮らしやすい環境 ■リビング全体を見渡せるカウンターキッチン!家族の様子を感じながらお料理できます ■LDK広々20帖以上!家族みんなでのんびり寛げますね ■家事が捗る食器洗浄乾燥機 ■リネン、ウォークインクローゼット等で収納豊富 ■フラット35S利用可 ●お客様の笑顔のために。・* 千葉県の不動産のことなら株式会社アフィオにお任せください!● お客様の一生の宝物になるお家探しの、心強いパートナーになれるよう全力でサポート致します! ご見学やご相談には迅速にご対応致します! お気軽にお問合せ下さいませ! ・豊富な物件数で、ご希望のお家探しが楽々できます。 ‥株式会社アフィオで今すぐ検索‥ |
| 採光面 | 南 | 構造/階数 | 木造/地上2階建 |
|---|---|---|---|
| 建ぺい率 | 60(%) | 容積率 | 150(%) |
| 駐車場 | 有 | 現況/引渡し | -/2026年1月下旬 |
| 土地権利 | 所有権 | 私道負担面積 | - |
| 接道状況 | 接道: 北 公道 道路幅: 4m | 用途地域 | 第一種低層住居専用地域
|
| セットバック | - | 法令上の制限 | - |
| 地目 | 宅地 | 地勢 | |
| 建築確認番号 | 第25UDI1W建05718号 | 都市計画 | 市街化区域 |
| 小学校区 | 佐倉市立間野台小学校 (千葉県佐倉市) この学区の他の物件を見る |
中学校区 | 臼井中学校 (千葉県佐倉市) この学区の他の物件を見る |
| 取引態様 | 仲介 | ||
電話をかける(携帯・PHS可)
043-309-7350
「ホームページを見て」とお伝え下さい。
お問い合わせ番号をお伝えください
RHS-B00119-064749
| 年利率 | % |
||
|---|---|---|---|
| ボーナス払い | 返済年数 | ||
| 頭金 | 直接入力する | 万円 | |

毎月のご返済額 |
ボーナス(×年2回) |
物件価格3,399万円 |
電話でお問い合わせ
株式会社アフィオ千葉店
|
電話をかける 043-309-7350 ※「ホームページを見て」とお伝えください。 |
お問い合わせ番号をお伝えください RHS-B00119-064749 |
|---|
TEL.043-309-7350
〒264-0036
千葉市若葉区殿台町392-1
9:00~18:30
定休日:水曜日
メインメニュー
物件特集2
※ピタットハウスの加盟店は独立自営であり、各店舗の責任のもと運営をしております。
現地案内会開催中‥365日ご案内いつでも大歓迎!!
LDK23.2帖/ウォークインクローゼット/浴室暖房乾燥機/食器洗浄乾燥機/間仕切り対応可/カースペース