| 価格 | 2,888万円値下がり ![]() |
||||
|---|---|---|---|---|---|
| 所在地 | 千葉県市原市山田橋3丁目
この地域周辺の物件を見る |
土地面積 | 136.91m² (41.42坪) | 建物面積 | 95.58u |
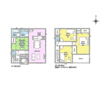
| 築年月 | 新築 2025年築 | 間取り | 4LDK (LDK16/和室5.2/洋室8/洋室6/洋室6) | ||
| 交通 |
JR内房線 五井/山田橋 バス12分 停歩1分
小湊鉄道 上総村上/徒歩36分 |
||||
電話をかける(携帯・PHS可)
043-309-7350
「ホームページを見て」とお伝え下さい。
お問い合わせ番号をお伝えください
RHS-B00119-065229
| 特徴 |
|
|---|---|
| セールスコメント | 現地案内会開催中‥365日ご案内いつでも大歓迎!! JR内房線「五井」駅バス12分。「山田橋」停歩1分。 市原小学校まで徒歩10分、市原中学校まで徒歩4分とお子様の通学も安心です*。 ■リビングを見渡せるカウンターキッチン ■LDKと和室併せて21.2帖の広々空間 ■スムーズな家事動線 ■主寝室はゆとりのある8帖 ■全居室収納あり ■防犯面も安心の人感センサー付玄関灯+TVモニター付きインターホン+防犯カメラ ■カースペース1台分 ■急な雨でも安心の広々インナーバルコニー ■地震の揺れを吸収する制震装置搭載 ●お客様の笑顔のために。・* お客様の一生の宝物になるお家探しの、心強いパートナーになれるよう全力でサポート致します! ご見学やご相談には迅速にご対応致します! お気軽にお問合せ下さいませ! |
| 採光面 | 南 | 構造/階数 | 木造/地上2階建 |
|---|---|---|---|
| 建ぺい率 | 60(%) | 容積率 | 180(%) |
| 駐車場 | 有 | 現況/引渡し | 空家/相談 |
| 土地権利 | 所有権 | 私道負担面積 | - |
| 接道状況 | 接道: 南西 私道 道路幅: 4.5m | 用途地域 | 第一種住居地域
|
| セットバック | - | 法令上の制限 | - |
| 地目 | 畑 | 地勢 | |
| 建築確認番号 | 都市計画 | 市街化区域 | |
| 小学校区 | 市原市立市原小学校 (千葉県市原市) この学区の他の物件を見る |
中学校区 | 市原中学校 (千葉県市原市) この学区の他の物件を見る |
| 取引態様 | 仲介 | ||
電話をかける(携帯・PHS可)
043-309-7350
「ホームページを見て」とお伝え下さい。
お問い合わせ番号をお伝えください
RHS-B00119-065229
| 年利率 | % |
||
|---|---|---|---|
| ボーナス払い | 返済年数 | ||
| 頭金 | 直接入力する | 万円 | |

毎月のご返済額 |
ボーナス(×年2回) |
物件価格2,888万円 |
![]() |
![]() |
市原市山田橋3丁目
2688万円〜3088万円 |
電話でお問い合わせ
株式会社アフィオ千葉店
|
電話をかける 043-309-7350 ※「ホームページを見て」とお伝えください。 |
お問い合わせ番号をお伝えください RHS-B00119-065229 |
|---|
TEL.043-309-7350
〒264-0036
千葉市若葉区殿台町392-1
9:00~18:30
定休日:水曜日
メインメニュー
物件特集2
※ピタットハウスの加盟店は独立自営であり、各店舗の責任のもと運営をしております。
現地案内会開催中‥365日ご案内いつでも大歓迎!!
小・中学校まで徒歩10分圏内/周辺環境良好/4LDK/南道路で日当たり良好/全居室南向き/カースペース有