| 価格 | 4,120万円 ![]() |
||||
|---|---|---|---|---|---|
| 所在地 | 千葉県千葉市緑区土気町
この地域周辺の物件を見る |
土地面積 | 167.68m² (50.72坪) | 建物面積 | 106.83u |
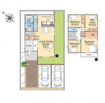
| 築年月 | 新築 2025年築 | 間取り | 4LDK (LDK20/洋室7.2/洋室5.2/洋室5.2/洋室4.5) | ||
| 交通 |
JR外房線 土気/徒歩20分
JR東金線 大網/徒歩52分 |
||||
電話をかける(携帯・PHS可)
043-309-7350
「ホームページを見て」とお伝え下さい。
お問い合わせ番号をお伝えください
RHS-B00119-066878
| 特徴 |
|
|---|---|
| セールスコメント | 現地案内会開催中‥即日ご案内大歓迎!! JR外房線「土気」駅徒歩10分 カースペース並列2台可 ■制震ダンパー入りのZEH住宅 ■シャープ製の太陽光パネル搭載 ■LDK広々20帖!家族みんなでゆったり過ごせます ■家事が捗る食洗機付きシステムキッチン ■リビング全体を見渡せるカウンターキッチン ■全居室収納有り!お部屋がすっきり片付きます ■たくさんの洋服や荷物を収納できるウォークインクローゼット ■玄関にシューズインクローゼット付 ●お客様の笑顔のために。・* 千葉県の不動産のことなら株式会社アフィオにお任せください!● お客様の一生の宝物になるお家探しの、心強いパートナーになれるよう全力でサポート致します! ご見学やご相談には迅速にご対応致します! お気軽にお問合せ下さいませ! |
| 採光面 | 南西 | 構造/階数 | 木造/地上2階建 |
|---|---|---|---|
| 建ぺい率 | 50(%) | 容積率 | 100(%) |
| 駐車場 | 有 | 現況/引渡し | 空家/相談 |
| 土地権利 | 所有権 | 私道負担面積 | - |
| 接道状況 | 接道: 南西 公道 道路幅: 6m | 用途地域 | 第一種低層住居専用地域
|
| セットバック | - | 法令上の制限 | - |
| 地目 | 宅地 | 地勢 | |
| 建築確認番号 | 都市計画 | 市街化調整区域 | |
| 小学校区 | 千葉市立土気小学校 (千葉県千葉市緑区) この学区の他の物件を見る |
中学校区 | 土気中学校 (千葉県千葉市緑区) この学区の他の物件を見る |
| 取引態様 | 仲介 | ||
電話をかける(携帯・PHS可)
043-309-7350
「ホームページを見て」とお伝え下さい。
お問い合わせ番号をお伝えください
RHS-B00119-066878
| 年利率 | % |
||
|---|---|---|---|
| ボーナス払い | 返済年数 | ||
| 頭金 | 直接入力する | 万円 | |

毎月のご返済額 |
ボーナス(×年2回) |
物件価格4,120万円 |
![]() |
![]() |
千葉市緑区土気町
4120万円 |
電話でお問い合わせ
株式会社アフィオ千葉店
|
電話をかける 043-309-7350 ※「ホームページを見て」とお伝えください。 |
お問い合わせ番号をお伝えください RHS-B00119-066878 |
|---|
TEL.043-309-7350
〒264-0036
千葉市若葉区殿台町392-1
9:00~18:30
定休日:水曜日
メインメニュー
物件特集2
※ピタットハウスの加盟店は独立自営であり、各店舗の責任のもと運営をしております。
現地案内会開催中‥即日ご案内大歓迎!!
食洗機付きシステムキッチン/LDK広々20帖/ウォークインクローゼット/全居室収納有り/カースペース並列2台可