| 価格 | 3,988万円 ![]() |
||||
|---|---|---|---|---|---|
| 所在地 | 千葉県千葉市中央区蘇我5丁目
この地域周辺の物件を見る |
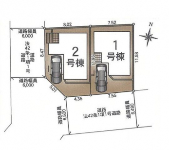
土地面積 | 89.77m² (27.16坪) | 建物面積 | 97.2u |
| 築年月 | 新築 2026年築 | 間取り | 3SLDK (LDK15.2/洋室6.1/洋室5.2/洋室5.2/S4.5) | ||
| 交通 |
JR京葉線 蘇我/徒歩17分
京成千原線 大森台/徒歩24分 |
||||
電話をかける(携帯・PHS可)
043-309-7350
「ホームページを見て」とお伝え下さい。
お問い合わせ番号をお伝えください
RHS-B00119-068270
| 特徴 |
|
|---|---|
| セールスコメント | 現地案内会開催中‥365日ご案内いつでも大歓迎!! 蘇我駅から徒歩17分/陽当たりのいい南道路/人感センサー付玄関灯 ■制震装置搭載の地震に強い家 ■風通しのいい角地 ■15.2帖のLDK ■リビング全体を見渡せるカウンターキッチン ■家事のしやすい水回り ■全室収納付きでお部屋が広く使えます ■陽当たりのいい南面バルコニー ■玄関がすっきり片付くシューズボックス ■カースペース1台分 ■防犯カメラ付き ●お客様の笑顔のために。・* 千葉県の不動産のことなら株式会社アフィオにお任せください!● お客様の一生の宝物になるお家探しの、心強いパートナーになれるよう全力でサポート致します! ご見学やご相談には迅速にご対応致します! お気軽にお問合せ下さいませ! |
| 採光面 | 南 | 構造/階数 | 木造/地上2階建 |
|---|---|---|---|
| 建ぺい率 | 60(%) | 容積率 | 200(%) |
| 駐車場 | 有 | 現況/引渡し | -/相談 |
| 土地権利 | 所有権 | 私道負担面積 | - |
| 接道状況 | 接道: 南 公道 道路幅: 6.4m 接道: 西 公道 道路幅: 6m |
用途地域 | 第一種住居地域
|
| セットバック | - | 法令上の制限 | - |
| 地目 | 宅地 | 地勢 | |
| 建築確認番号 | 第KBI-SGM25-10-4251号 | 都市計画 | 市街化区域 |
| 小学校区 | 千葉市立蘇我小学校 (千葉県千葉市中央区) この学区の他の物件を見る |
中学校区 | 蘇我中学校 (千葉県千葉市中央区) この学区の他の物件を見る |
| 取引態様 | 仲介 | ||
電話をかける(携帯・PHS可)
043-309-7350
「ホームページを見て」とお伝え下さい。
お問い合わせ番号をお伝えください
RHS-B00119-068270
| 年利率 | % |
||
|---|---|---|---|
| ボーナス払い | 返済年数 | ||
| 頭金 | 直接入力する | 万円 | |

毎月のご返済額 |
ボーナス(×年2回) |
物件価格3,988万円 |
![]() |
![]() |
千葉市中央区蘇我5丁目
3788万円〜3988万円 |
電話でお問い合わせ
株式会社アフィオ千葉店
|
電話をかける 043-309-7350 ※「ホームページを見て」とお伝えください。 |
お問い合わせ番号をお伝えください RHS-B00119-068270 |
|---|
TEL.043-309-7350
〒264-0036
千葉市若葉区殿台町392-1
9:00~18:30
定休日:水曜日
メインメニュー
物件特集2
※ピタットハウスの加盟店は独立自営であり、各店舗の責任のもと運営をしております。
現地案内会開催中‥365日ご案内いつでも大歓迎!!
蘇我駅から徒歩17分/陽当たりのいい南道路/人感センサー付玄関灯