八千代市大和田の分譲住宅一覧|千葉全域の不動産はアフィオへ

株式会社アフィオ
ピタットハウス接客コンテスト首都圏大会売買部門金賞・銅賞
土地戸建建築注文
トータルにプロデュース
043-309-7350
2件中1〜2件を表示
  • 1
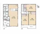
新築一戸建て
価格 2,990万円 
所在地 八千代市大和田
交通 京成本線 京成大和田駅 徒歩10分
建物面積 86.32m2 土地面積 100.00m2

現地案内会開催中‥365日ご案内いつでも大歓迎!! 京成大和田駅から徒歩10分/大和田南小学校まで徒歩4分、大和田中学校まで徒歩15分

新築一戸建て
価格 3,290万円 
所在地 八千代市大和田
交通 京成本線 京成大和田駅 徒歩10分
建物面積 84.46m2 土地面積 107.38m2

現地案内会開催中‥365日ご案内いつでも大歓迎!! 京成大和田駅から徒歩10分/大和田南小学校まで徒歩4分、大和田中学校まで徒歩15分

2件中1〜2件を表示
  • 1
税金のことについて
WEBチラシ
スタッフブログ
お客様の声

会社概要

千葉店

〒264-0036

千葉市若葉区殿台町392-1

TEL:043-309-7350

FAX:043-309-6966

千葉南店

〒292-0009

千葉県木更津市金田東6-18-10

TEL:0438-38-6150

FAX:0438-38-6157


株式会社アフィオ

TEL.043-309-7350
〒264-0036
千葉市若葉区殿台町392-1
9:00~18:30
定休日:水曜日

※ピタットハウスの加盟店は独立自営であり、各店舗の責任のもと運営をしております。

千葉県全域の不動産