| 価格 | 3,980万円 ![]() |
||||
|---|---|---|---|---|---|
| 所在地 | 千葉県柏市松葉町3丁目
この地域周辺の物件を見る |
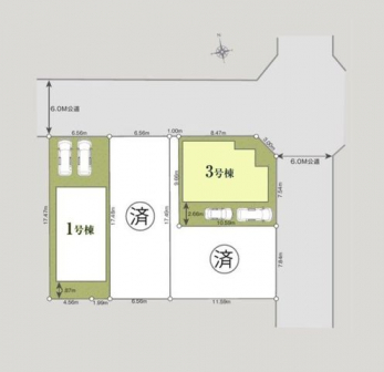
土地面積 | 100.1m² (30.28坪) | 建物面積 | 96.05u |
| 築年月 | 新築 2025年築 | 間取り | 4LDK (LDK16/和室4.5/洋室7.5/洋室5.2/洋室5.2) | ||
| 交通 |
つくばエクスプレス 柏の葉キャンパス/松葉第一小学校 バス11分 停歩3分
JR常磐線 北柏/徒歩36分 |
||||
電話をかける(携帯・PHS可)
043-309-7350
「ホームページを見て」とお伝え下さい。
お問い合わせ番号をお伝えください
RHS-B00119-064461
| 特徴 |
|
|---|---|
| セールスコメント | 現地案内会開催中‥365日ご案内いつでも大歓迎!! 松葉第一小学校徒歩6分・松葉中学校徒歩2分とお子様の通学安心 周辺環境充実!お買い物も楽々 ■開放的で陽当たり良い角地 ■全居室南向きの明るいお家 ■リビング全体を見渡せるカウンターキッチン ■ベビーカーなどの収納に便利なシューズクローク ■カースペース並列2台可 ■地盤保障20年付 ●お客様の笑顔のために。・* 千葉県の不動産のことなら株式会社アフィオにお任せください!● お客様の一生の宝物になるお家探しの、心強いパートナーになれるよう全力でサポート致します! ご見学やご相談には迅速にご対応致します! お気軽にお問合せ下さいませ! |
| 採光面 | 南 | 構造/階数 | 木造/地上2階建 |
|---|---|---|---|
| 建ぺい率 | 50(%) | 容積率 | 100(%) |
| 駐車場 | 有 | 現況/引渡し | 空家/即時 |
| 土地権利 | 所有権 | 私道負担面積 | - |
| 接道状況 | 接道: 北 公道 道路幅: 6m 接道: 東 公道 道路幅: 6m |
用途地域 | 第一種低層住居専用地域
|
| セットバック | - | 法令上の制限 | - |
| 地目 | 畑 | 地勢 | |
| 建築確認番号 | 都市計画 | 市街化区域 | |
| 小学校区 | () |
中学校区 | () |
| 取引態様 | 仲介 | ||
電話をかける(携帯・PHS可)
043-309-7350
「ホームページを見て」とお伝え下さい。
お問い合わせ番号をお伝えください
RHS-B00119-064461
| 年利率 | % |
||
|---|---|---|---|
| ボーナス払い | 返済年数 | ||
| 頭金 | 直接入力する | 万円 | |

毎月のご返済額 |
ボーナス(×年2回) |
物件価格3,980万円 |
![]() |
![]() |
柏市松葉町3丁目
3880万円〜3980万円 |
電話でお問い合わせ
株式会社アフィオ千葉店
|
電話をかける 043-309-7350 ※「ホームページを見て」とお伝えください。 |
お問い合わせ番号をお伝えください RHS-B00119-064461 |
|---|
TEL.043-309-7350
〒264-0036
千葉市若葉区殿台町392-1
9:00~18:30
定休日:水曜日
メインメニュー
物件特集2
※ピタットハウスの加盟店は独立自営であり、各店舗の責任のもと運営をしております。
現地案内会開催中‥365日ご案内いつでも大歓迎!!
小・中学校徒歩10分圏内/周辺環境充実/開放的な角地/全居室南向き/シューズインクローク/駐車並列2台可