| 価格 | 2,488万円 ![]() |
||||
|---|---|---|---|---|---|
| 所在地 | 千葉県富津市千種新田
この地域周辺の物件を見る |
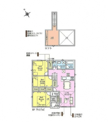
土地面積 | 202.48m² (61.25坪) | 建物面積 | 79.17u |
| 築年月 | 新築 2026年築 | 間取り | 3LDK (LDK18.1/洋室7/洋室6.1/洋室5.6/その他5.7) | ||
| 交通 |
JR内房線 大貫/徒歩9分
JR内房線 青堀/徒歩65分 |
||||
電話をかける(携帯・PHS可)
043-309-7350
「ホームページを見て」とお伝え下さい。
お問い合わせ番号をお伝えください
RHS-B00119-071394
| 特徴 |
|
|---|---|
| セールスコメント | 現地案内会開催中‥365日ご案内いつでも大歓迎!! JR内房線「大貫」駅徒歩9分。 暮らしやすい閑静な住宅街です*。 ■敷地広々約61.2坪 ■動線良好な平屋建て住宅 ■リビングを見渡せるカウンターキッチン ■家族みんなでゆったりと過ごせるLDK広々18.1帖 ■防犯面も安心の人感センサー付玄関灯+TVモニター付きインターホン+防犯カメラ ■使い勝手様々なロフト付き ■全居室収納有 ■カースペース2台分 ■急な雨でも安心のインナーバルコニー ■地震の揺れを吸収する制震装置搭載 ●お客様の笑顔のために。・* お客様の一生の宝物になるお家探しの、心強いパートナーになれるよう全力でサポート致します! ご見学やご相談には迅速にご対応致します! お気軽にお問合せ下さいませ! |
| 採光面 | 南西 | 構造/階数 | 木造/地上1階建 |
|---|---|---|---|
| 建ぺい率 | 60(%) | 容積率 | 200(%) |
| 駐車場 | 有 | 現況/引渡し | 空家/相談 |
| 土地権利 | 所有権 | 私道負担面積 | - |
| 接道状況 | 接道: 北西 公道 道路幅: 5.6m | 用途地域 | 第一種住居地域
|
| セットバック | - | 法令上の制限 | - |
| 地目 | 雑種地 | 地勢 | |
| 建築確認番号 | 都市計画 | ||
| 小学校区 | 富津市立大貫小学校 (千葉県富津市) この学区の他の物件を見る |
中学校区 | 大貫中学校 (千葉県富津市) この学区の他の物件を見る |
| 取引態様 | 仲介 | ||
電話をかける(携帯・PHS可)
043-309-7350
「ホームページを見て」とお伝え下さい。
お問い合わせ番号をお伝えください
RHS-B00119-071394
| 年利率 | % |
||
|---|---|---|---|
| ボーナス払い | 返済年数 | ||
| 頭金 | 直接入力する | 万円 | |

毎月のご返済額 |
ボーナス(×年2回) |
物件価格2,488万円 |
![]() |
![]() |
富津市千種新田
2388万円〜2488万円 |
電話でお問い合わせ
株式会社アフィオ千葉店
|
電話をかける 043-309-7350 ※「ホームページを見て」とお伝えください。 |
お問い合わせ番号をお伝えください RHS-B00119-071394 |
|---|
TEL.043-309-7350
〒264-0036
千葉市若葉区殿台町392-1
9:00~18:30
定休日:水曜日
メインメニュー
物件特集2
※ピタットハウスの加盟店は独立自営であり、各店舗の責任のもと運営をしております。
現地案内会開催中‥365日ご案内いつでも大歓迎!!
閑静な住宅街/動線良好な平屋/LD広々18.17帖/ロフト付き/全居室収納有/防犯カメラ/カースペース有